华丽时代si设计为“晨曦茶坊”开启全新篇章。由杭州深厚的茶饮文化孕育而生的品牌 Lumi在广州繁华的天河城购物中心展现了其最新创意。Lumi这个名字源自希腊语:“光”,象征着人与人、情感与情感之间的连接,以及对茶饮的热爱。这个新兴的优质茶饮品牌通过品味茶饮的单纯行为,转化为增进人际交流和想象力的途径,为自身在市场中赢得了一席之地。随着它在华南地区的首次登场,Lumi 的首家店铺坐落于高端的天河城购物中心内——这里常有潮流设计师、企业高管和各界精英人士往来。在喜茶、奈雪的茶、茶颜悦色和乐乐茶等巨头的环绕下,Lumi为茶饮体验带来了一种全新的视角。

Lumi 店铺占据天河城购物中心 10 米高的大堂一角,并精心规划出三个区域:茶饮吧台、室内座位区和一个朝东的室外庭院,这个户外座位区远离了喧闹的街道,也引领人们通往天河城购物中心的其他区域。反映 Lumi 品牌价值观——创意激发、多元融合、活力释放和成熟规划,Studio X 以一种阁式结构的形式,在开阔的大堂中呈现了有趣且充满细节的si设计。

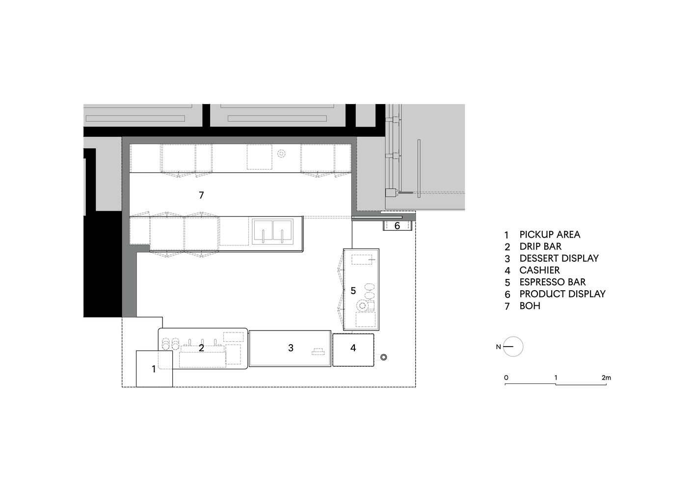
达成高效与品牌理念的完美融合。茶饮吧台被进一步细分为前区和后区两个部分,旨在确保茶饮制作区域既优雅又整洁的同时,实现专业的高效运作。在这两个部分之间,si设计团队从传统中式窗棂中汲取灵感,打造了一种既能提供私密又保持通透的隔断。这个格状的木制隔断初看普通,但细看可以发现由品牌字母“L”所构成的图案,增添了丰富性和微妙性。并且在后区的背墙,安装了与窗棂相配合的灯箱元素,暖黄色的灯光为茶饮师提供了柔和的照明,也映出了茶饮师忙碌的身影。

考虑到晨曦茶坊日常的客流量,si设计让前吧台采用了经典的U形配置,同时期望为它注入独特的风格和体验:吧台内的每个功能都以独立的模块呈现,每个模块有着自己的形状与细节,丰富了传统的单一造型吧台,展现出活力和趣味,强化了品牌的活泼而精致的理念。

Si设计让每个功能都以独立的模块表现,每个模块有着自己的形状与细节,丰富了传统的单一造型吧台,展现出活力和趣味。如果您还想了解更多关于si设计和专卖店设计的时尚资讯,或者需要一站式解决品牌全案设计的需求,欢迎添加华丽时代创意总监微信:307994645,或点击在线咨询了解更多详细信息!